Contact the agent if you'd like further information.
Enquire with Agent
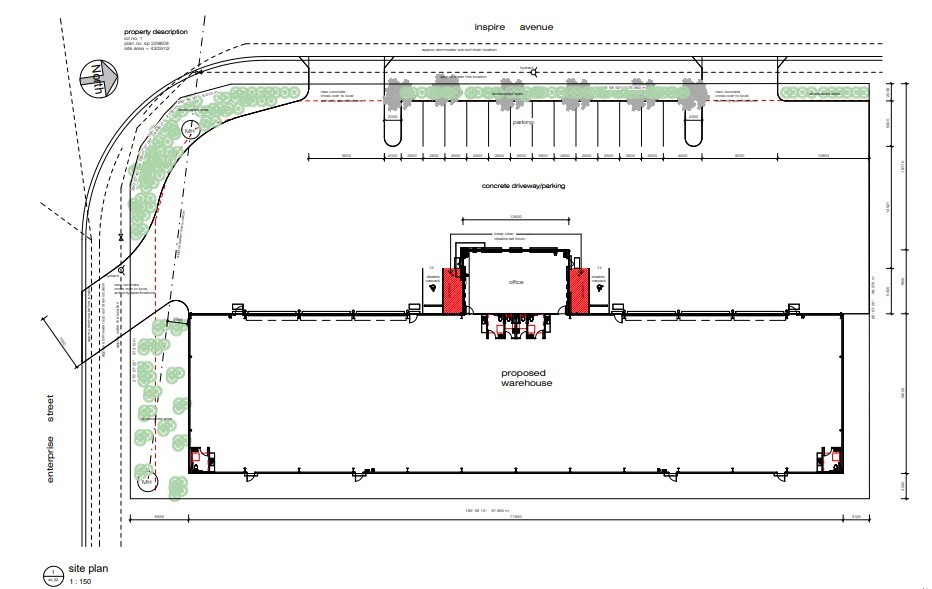
Industrial/Warehouse for Lease in Bohle
Brand new Industrial facility - available July 2026
- Building: 1,576m²
- Land: 4,303m²
Next Steps:
Enquire with agentSet to commence construction shortly, this brand new industrial warehouse will be available for lease from July 2026.
Features include:
- Land area: 4,303 sqm
- Building area: 1,576 sqm (can be split in two)
- Includes 96 sqm office block
- Fully concreted and security-fenced site
- Dual access points (corner position)
- Warehouse dimensions: 77.9m x 19m
- 6 x electric roller doors: 5.5m wide x 5.7m high
- Internal warehouse height: 6.3m
Contact RWC Townsville for a detailed set of plans and construction update.
Building:
1,576m²
Land:
4,303m² / 1.06 acres
Zone:
Medium Impact Industry
Next Steps:
Enquire with agentShare:
Contact
Agents
- Loading...
